Magisches Traumhaus in Punta Chullera Willkommen in einem außergewöhnlichen Zuhause in der begehrten Lage von Punta Chullera, bekannt für seine friedliche Atmosphäre und einige der besten Aussichten an der Costa del Sol. Diese exklusive Immobilie Marbella bietet Ihnen ein unvergleichliches Lebensgefühl. Das Anwesen verfügt über drei geräumige Schlafzimmer und großzügige Wohnbereiche, mit der Möglichkeit, bei Bedarf zusätzliche Schlafzimmer zu schaffen. Der spektakuläre Blick auf das Meer ist von allen Schlafzimmern und sozialen Bereichen aus sichtbar – eine der besten Aussichten entlang der gesamten Küste. Nur wenige Gehminuten entfernt finden Sie einen der schönsten Strände der Costa del Sol. Das offene...
Magisches Traumhaus in Punta Chullera
Willkommen in einem außergewöhnlichen Zuhause in der begehrten Lage von Punta Chullera, bekannt für seine friedliche Atmosphäre und einige der besten Aussichten an der Costa del Sol. Diese exklusive Immobilie Marbella bietet Ihnen ein unvergleichliches Lebensgefühl.
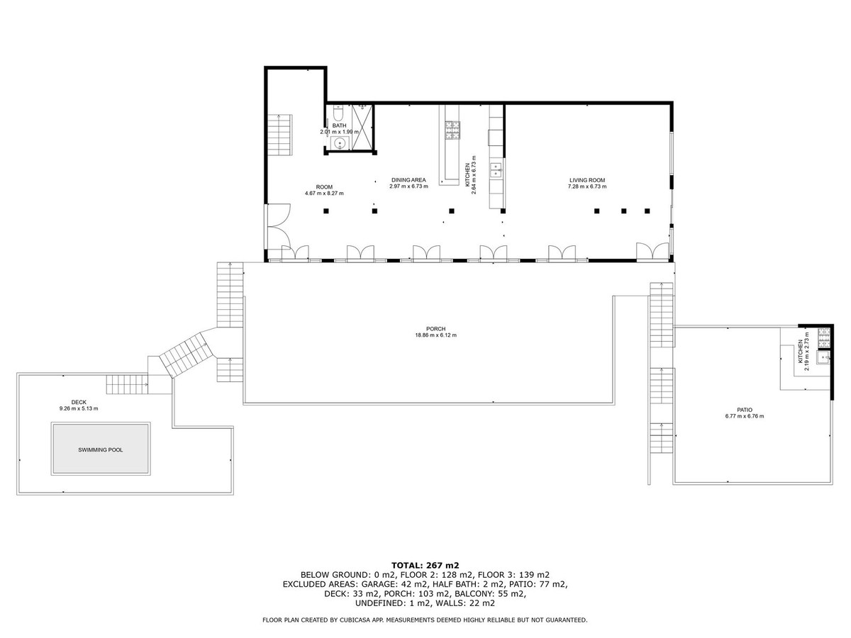
Das Anwesen verfügt über drei geräumige Schlafzimmer und großzügige Wohnbereiche, mit der Möglichkeit, bei Bedarf zusätzliche Schlafzimmer zu schaffen. Der spektakuläre Blick auf das Meer ist von allen Schlafzimmern und sozialen Bereichen aus sichtbar – eine der besten Aussichten entlang der gesamten Küste. Nur wenige Gehminuten entfernt finden Sie einen der schönsten Strände der Costa del Sol.
Das offene Raumkonzept sorgt für eine helle und luftige Atmosphäre, wobei jedes Zimmer direkten Zugang zu seiner eigenen Terrasse hat. Die großzügigen Terrassen, der etablierte und private Garten sowie der eigene Pool machen dieses Zuhause zum perfekten Ort für Entspannung und soziale Zusammenkünfte.
Eine Doppelgarage mit direktem Zugang zur Straße bietet bequeme Parkmöglichkeiten, und im gesamten Haus steht ausreichend Stauraum zur Verfügung. Die Immobilie befindet sich in einer sicheren und gepflegten Wohnanlage, nur fünf Minuten von Sotogrande und La Duquesa sowie zwei Minuten vom charmanten Torre de la Sal entfernt.
Erleben Sie ein einzigartiges Zuhause, in dem Meer, Licht und Harmonie aufeinandertreffen – ein Ort, den Sie das ganze Jahr über genießen können. Entdecken Sie Ihre exklusive Villa an der Costa del Sol und lassen Sie sich von einem deutschen Makler vor Ort umfassend beraten, um Ihr Traumhaus in Spanien zu kaufen.