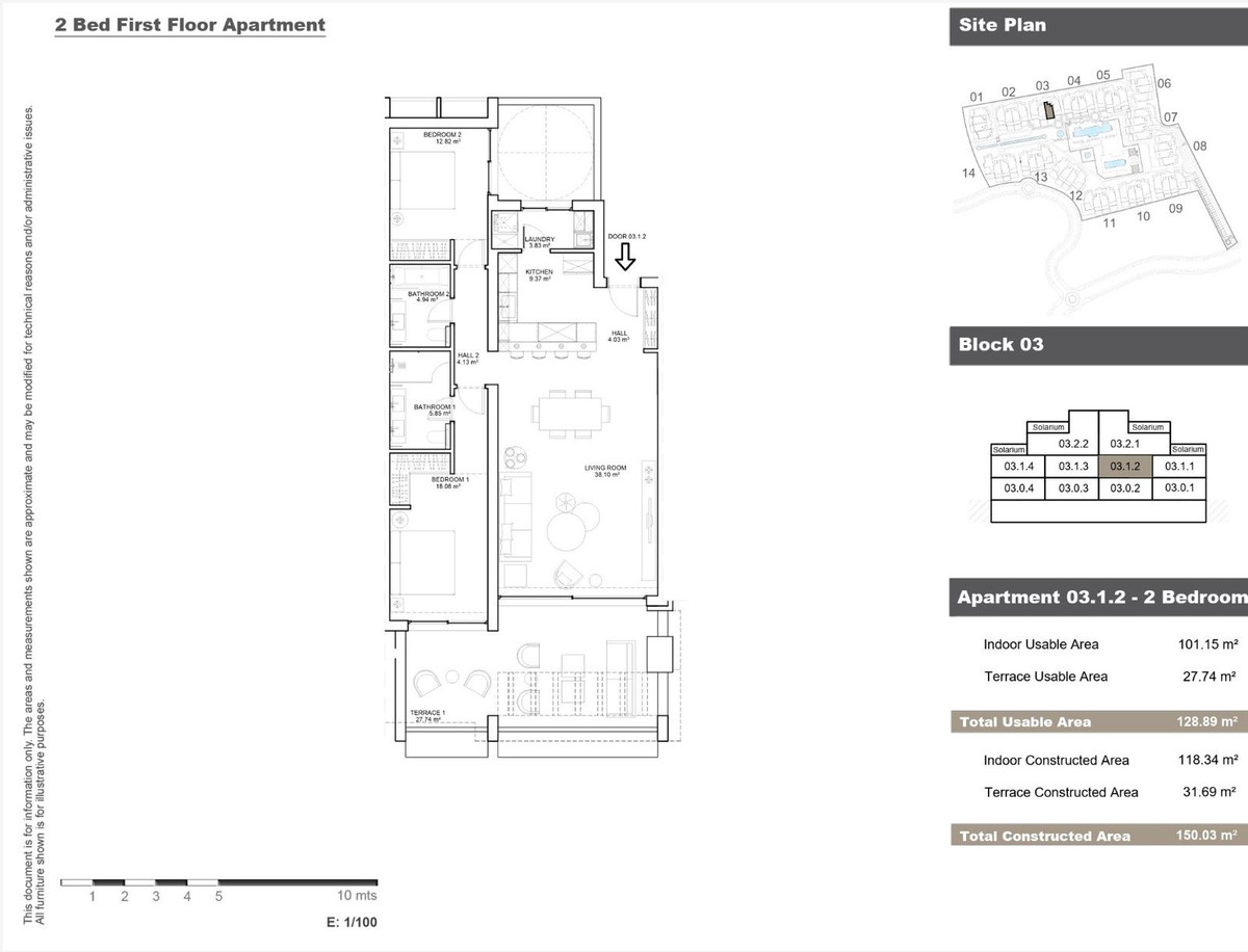
Moderne Eleganz an der Neuen Goldenen Meile – 2-Schlafzimmer-Wohnung mit großer privater Terrasse Diese stilvolle Erdgeschosswohnung ist Teil eines hochmodernen Wohnkomplexes in einer der begehrtesten Lagen Esteponas – der Neuen Goldenen Meile. Mit Fokus auf Eleganz und Funktionalität bietet die Immobilie einen hellen, offenen Grundriss, der das Innen- und Außenleben nahtlos verbindet. Die Wohnung verfügt über 2 geräumige Schlafzimmer und 2 Bäder sowie eine großzügige private Terrasse, die sich perfekt für Sonnenbaden, Essen im Freien oder geselliges Beisammensein eignet. Umgeben von üppigen Gärten und hochwertigen Gemeinschaftsbereichen vereint sie Komfort, Qualität und zeitgenössisches Design. Eingebettet in eine ruhige und sichere Umgebung,...
Moderne Eleganz an der Neuen Goldenen Meile – 2-Schlafzimmer-Wohnung mit großer privater Terrasse
Diese stilvolle Erdgeschosswohnung ist Teil eines hochmodernen Wohnkomplexes in einer der begehrtesten Lagen Esteponas – der Neuen Goldenen Meile. Mit Fokus auf Eleganz und Funktionalität bietet die Immobilie einen hellen, offenen Grundriss, der das Innen- und Außenleben nahtlos verbindet.
Die Wohnung verfügt über 2 geräumige Schlafzimmer und 2 Bäder sowie eine großzügige private Terrasse, die sich perfekt für Sonnenbaden, Essen im Freien oder geselliges Beisammensein eignet. Umgeben von üppigen Gärten und hochwertigen Gemeinschaftsbereichen vereint sie Komfort, Qualität und zeitgenössisches Design.
Eingebettet in eine ruhige und sichere Umgebung, mit einfachem Zugang zu Stränden, Golfplätzen, Restaurants und allen wichtigen Annehmlichkeiten, präsentiert sich diese Immobilie als idealer Lebensmittelpunkt, Urlaubsrefugium oder Investitionsmöglichkeit.
Die voraussichtliche Fertigstellung durch den Entwickler erfolgt im Jahr 2026. Lassen Sie sich diese exklusive Gelegenheit in Marbella nicht entgehen und setzen Sie sich mit Ihrem Immobilienmakler in Marbella oder einem deutschen Makler vor Ort in Verbindung, um mehr über diese traumhafte Wohnung zu erfahren.