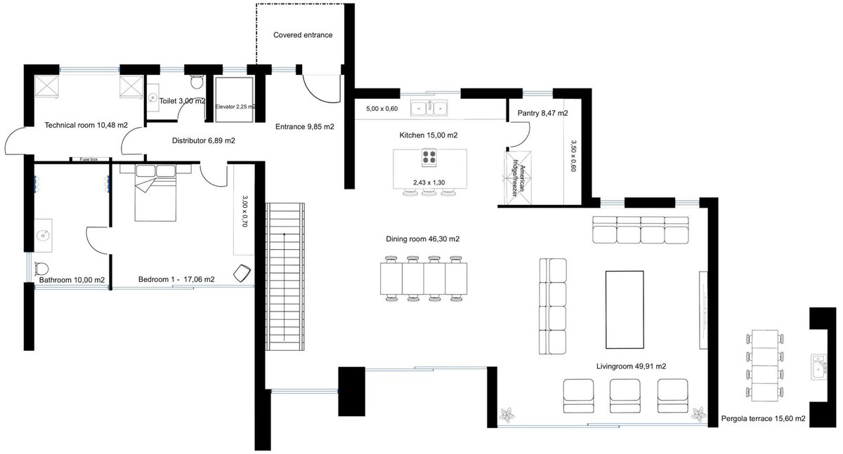
EXKLUSIVE ÖKOLOGISCHE VILLA – KEY-IN-HAND in Monte Mayor mit atemberaubendem Blick auf das grüne Tal. Dieses Anwesen wird zu einem wahren Juwel für all jene, die Raum, Exklusivität und Qualität schätzen. Die Immobilie wird auf einem großzügigen Grundstück von 7.250 m² errichtet und umfasst drei Etagen. Alle Materialien, einschließlich Kücheneinrichtungen, Bodenbeläge und Badezimmerwände, stammen von der renommierten Firma Grespania, was für höchste Qualität und Ästhetik steht. Im Erdgeschoss empfangen Sie eine beeindruckende Eingangshalle mit doppelter Deckenhöhe, die sowohl Elegant als auch einladend wirkt. Ein großzügiger Essbereich mit offener, maßgeschneiderter Küche, die mit hochwertigen Bosch-Geräten ausgestattet ist, lädt zum Verweilen ein....
EXKLUSIVE ÖKOLOGISCHE VILLA – KEY-IN-HAND in Monte Mayor mit atemberaubendem Blick auf das grüne Tal. Dieses Anwesen wird zu einem wahren Juwel für all jene, die Raum, Exklusivität und Qualität schätzen. Die Immobilie wird auf einem großzügigen Grundstück von 7.250 m² errichtet und umfasst drei Etagen. Alle Materialien, einschließlich Kücheneinrichtungen, Bodenbeläge und Badezimmerwände, stammen von der renommierten Firma Grespania, was für höchste Qualität und Ästhetik steht.
Im Erdgeschoss empfangen Sie eine beeindruckende Eingangshalle mit doppelter Deckenhöhe, die sowohl Elegant als auch einladend wirkt. Ein großzügiger Essbereich mit offener, maßgeschneiderter Küche, die mit hochwertigen Bosch-Geräten ausgestattet ist, lädt zum Verweilen ein. Der Außenbereich beinhaltet eine großzügige, überdachte Terrasse und einen herrlichen 80 m² großen Pool, der ideal für entspannende Stunden ist. Rund um die Villa ermöglicht ein gepflasterter Weg einfachen Zugang zum weitläufigen Garten.
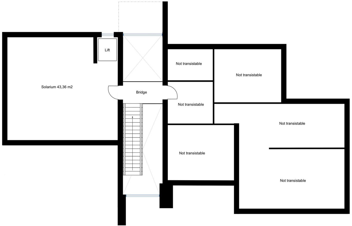
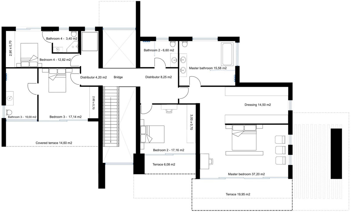
Im ersten Stock finden Sie zwei Gästezimmer, jeweils mit eigenem Bad, sowie das exquisite Hauptschlafzimmer mit einem großen Ankleidezimmer und privater Terrasse. Die untere Etage bietet Platz für bis zu vier Autos in der Garage, Technikräume und jede Menge Gestaltungspotential für individuelle Nutzung.
Genießen Sie den mediterranen Lebensstil an der Costa del Sol in dieser einzigartigen Immobilie. Unser Team aus deutschen Maklern vor Ort steht Ihnen gerne zur Verfügung, um Ihnen beim Kauf Ihres Traumhauses in Spanien zu helfen. Kontaktieren Sie uns für weitere Informationen über unsere exklusiven Villen in Marbella.