Exklusive, zeitgenössische Ökovilla mit Panoramablick in Monte Mayor – Benahavís – Gesamtfläche von 1.334 m² auf 3 Etagen. Diese außergewöhnliche Villa wird auf einem großzügigen Grundstück von ca. 7.825 m² in der prestigeträchtigen Urbanisation Monte Mayor errichtet, einer waldreichen Umgebung, die Ruhe und Privatsphäre bietet. Das Erdgeschoss erwartet Sie mit einer beeindruckenden, doppelhohen Eingangshalle, die mit einer eleganten Treppe und einem pneumatischen Aufzug ausgestattet ist. Der großzügige Wohn- und Essbereich öffnet sich zur weitläufigen Terrasse mit Pool und chill-out Bereich. Die moderne, voll ausgestattete Küche verfügt über eine praktische Speisekammer. Zudem befindet sich hier ein Schlafzimmer mit eigenem Bad. Im...
Exklusive, zeitgenössische Ökovilla mit Panoramablick in Monte Mayor – Benahavís – Gesamtfläche von 1.334 m² auf 3 Etagen. Diese außergewöhnliche Villa wird auf einem großzügigen Grundstück von ca. 7.825 m² in der prestigeträchtigen Urbanisation Monte Mayor errichtet, einer waldreichen Umgebung, die Ruhe und Privatsphäre bietet.
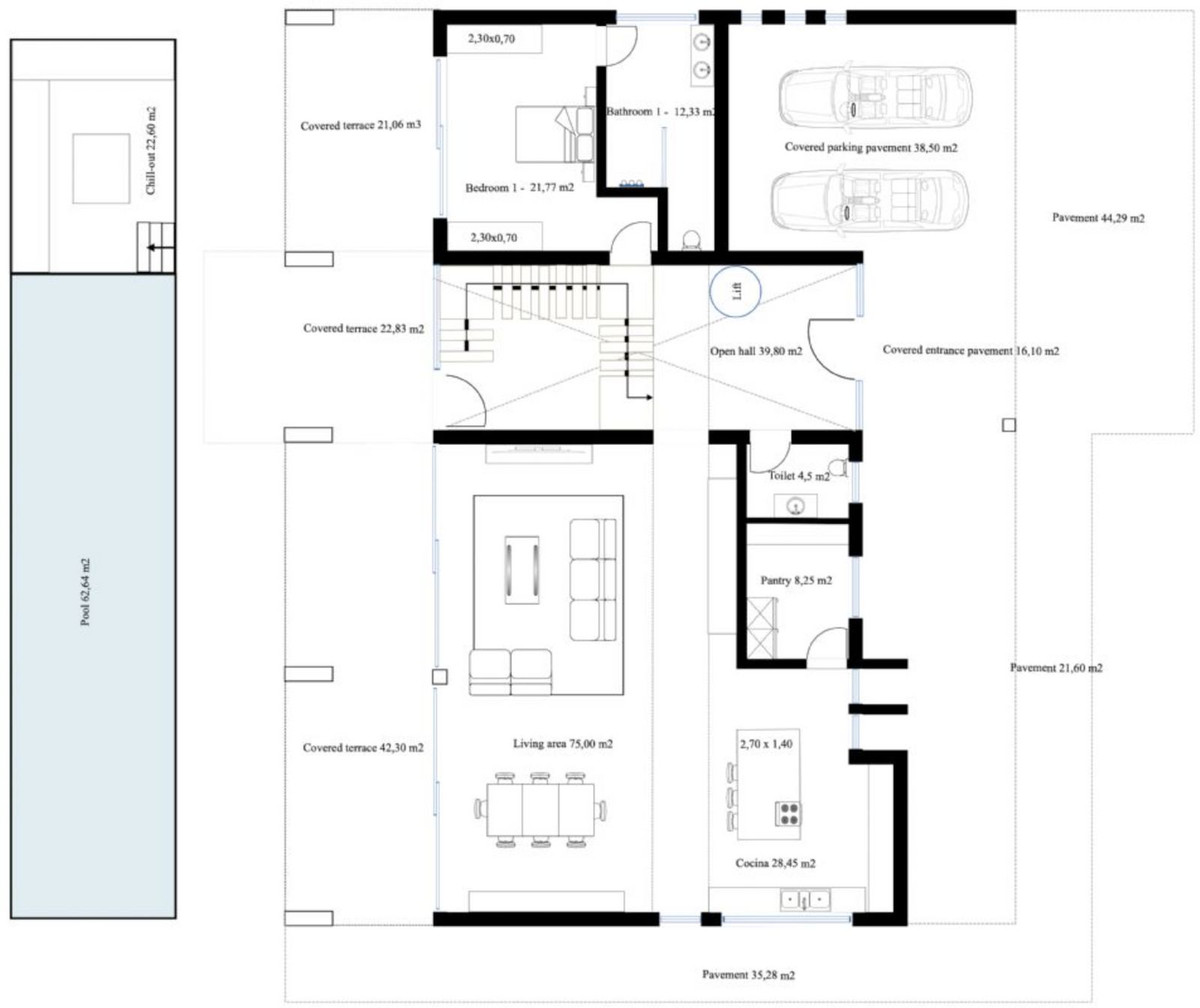
Das Erdgeschoss erwartet Sie mit einer beeindruckenden, doppelhohen Eingangshalle, die mit einer eleganten Treppe und einem pneumatischen Aufzug ausgestattet ist. Der großzügige Wohn- und Essbereich öffnet sich zur weitläufigen Terrasse mit Pool und chill-out Bereich. Die moderne, voll ausgestattete Küche verfügt über eine praktische Speisekammer. Zudem befindet sich hier ein Schlafzimmer mit eigenem Bad.
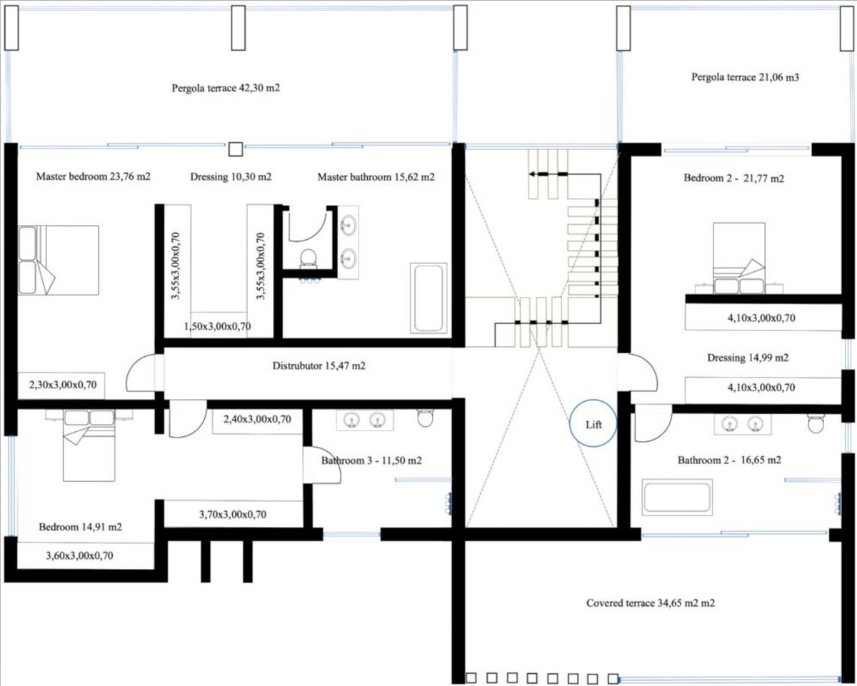
Im ersten Stock befindet sich die Master-Suite mit eigenem Bad, zwei Ankleidezimmern und zwei privaten Terrassen. Darüber hinaus sind zwei weitere Schlafzimmer mit en-suite Badezimmern und Ankleidebereichen vorhanden, wobei eines direkten Zugang zur Terrasse hat.
Im Untergeschoss finden Sie eine Eingangshalle, eine Garage, ein WC, eine Sauna, ein Spielzimmer sowie einen Technikraum für den Pool. Die Bauzeit beträgt 12-14 Monate nach Erhalt der Genehmigungen.
Bei uns haben Sie die Möglichkeit, eine luxuriöse Immobilie in Marbella zu gestalten, die ganz Ihren Vorstellungen entspricht. Wir sind Ihr deutscher Makler vor Ort, der Sie bei der Suche nach Ihrem Traumhaus in Spanien unterstützt. Investieren Sie in exklusive Villen an der Costa del Sol und genießen Sie einen unvergleichlichen Lebensstil in einer der schönsten Regionen Spaniens.