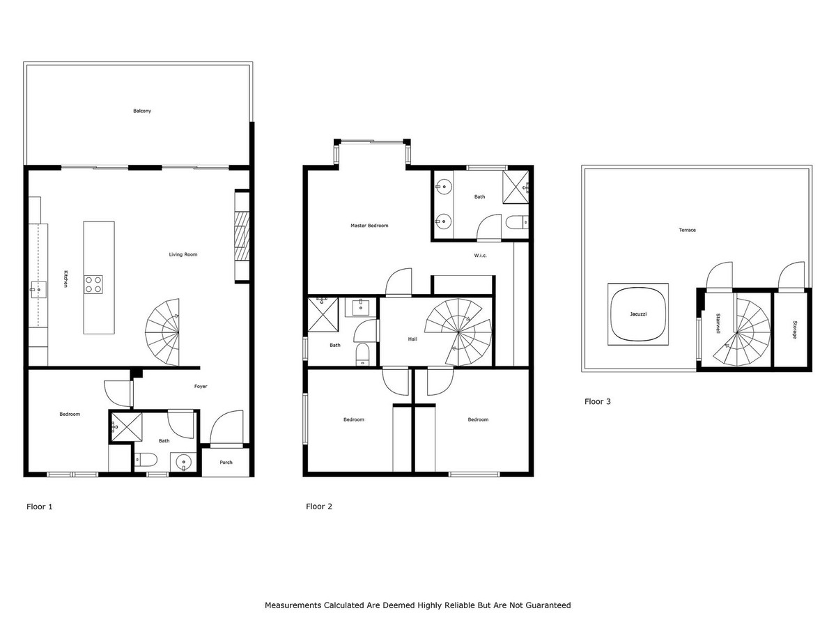
Dieses beeindruckende, komplett renovierte Duplex-Penthouse mit drei Schlafzimmern befindet sich in der renommierten Anlage Fuente de Aloha in Nueva Andalucía, nur wenige Minuten von Puerto Banús entfernt und umgeben von den besten Golfplätzen im Golf Valley von Marbella. Die Immobilie bietet einen großzügigen und hellen Wohnbereich mit einer eleganten offenen Küche, die sowohl Komfort als auch Stil verkörpert. Das Hauptschlafzimmer verfügt über einen privaten begehbaren Kleiderschrank, während zwei zusätzliche Schlafzimmer ein modernes Badezimmer teilen, ergänzt durch ein Gäste-WC. Ein herausragendes Merkmal sind die 200 Quadratmeter großen Terrassen, von denen die Hauptterrasse im ersten Stock atemberaubende Ausblicke auf La Concha bietet...
Dieses beeindruckende, komplett renovierte Duplex-Penthouse mit drei Schlafzimmern befindet sich in der renommierten Anlage Fuente de Aloha in Nueva Andalucía, nur wenige Minuten von Puerto Banús entfernt und umgeben von den besten Golfplätzen im Golf Valley von Marbella.
Die Immobilie bietet einen großzügigen und hellen Wohnbereich mit einer eleganten offenen Küche, die sowohl Komfort als auch Stil verkörpert. Das Hauptschlafzimmer verfügt über einen privaten begehbaren Kleiderschrank, während zwei zusätzliche Schlafzimmer ein modernes Badezimmer teilen, ergänzt durch ein Gäste-WC.
Ein herausragendes Merkmal sind die 200 Quadratmeter großen Terrassen, von denen die Hauptterrasse im ersten Stock atemberaubende Ausblicke auf La Concha bietet und mit einem privaten Jacuzzi ausgestattet ist. Dies schafft die perfekte Kulisse für Entspannung und das Leben im Freien.
Die Bewohner von Fuente de Aloha genießen zudem exklusive Annehmlichkeiten, darunter Parkplätze in der Tiefgarage, ein Innen- und ein Außenpool, ein voll ausgestattetes Fitnessstudio sowie eine Sauna.
Mit einem zeitgenössischen Design und einer erstklassigen Lage ist dieses Penthouse die ideale Wahl für ein stilvolles Zuhause oder eine außergewöhnliche Investitionsmöglichkeit an der Costa del Sol. Bei der Suche nach Immobilien Marbella oder exklusiven Villen Costa del Sol ist unser deutscher Makler vor Ort Ihr kompetenter Ansprechpartner.